
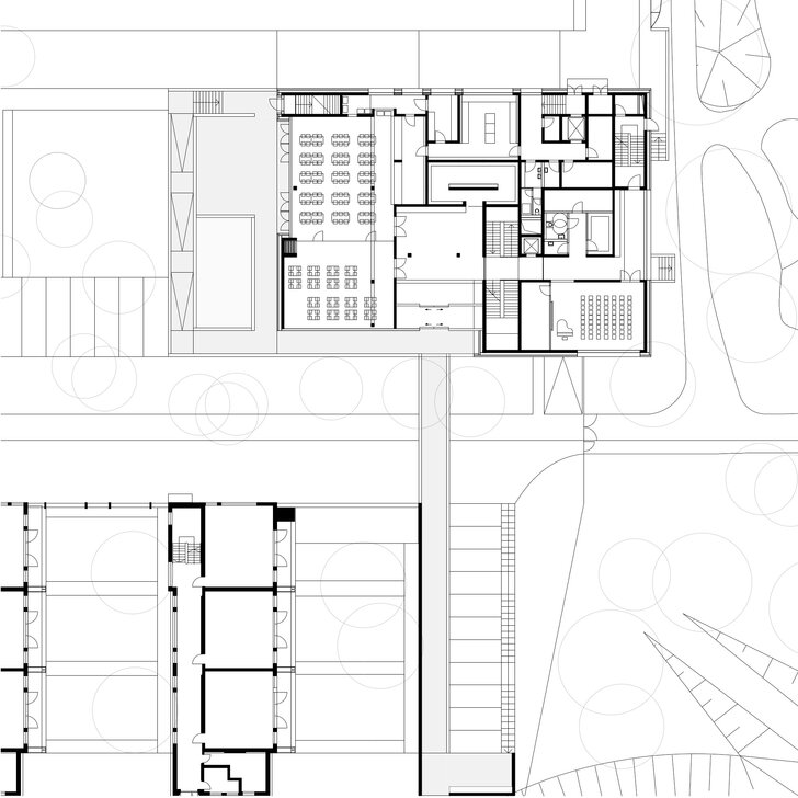
Erweiterung Ebelfeldschule
Auf den Spuren der Moderne
| Status | In Planung VOF-Vergabeverfahren, 2017, 1. Preis |
|---|
| Standort | Frankfurt-Praunheim |
|---|---|
| Bauherr | Stadtschulamt der Stadt Frankfurt am Main |
| Daten | BGF 4.000 qm / 10 Klassen-und Fachräume, Mensa |
|---|---|
| Leistungen | LPH 1-8 |
| Team Planung | Beiyang Duan, Anna Lermen, Guangda Li, Stefano Turri, Petra Wagner |
|---|
| Projektsteuerung | Amt für Bau und Immobilien der Stadt Frankfurt am Main |
|---|---|
| Tragwerk | Werner Sobek GmbH & Co. KG, Frankfurt am Main |
| Energie | Werner Sobek GmbH & Co. KG, Frankfurt am Main |
| TGA (HLS) | Planungsbüro Röhrig GmbH, Frankfurt am Main |
| TGA (ELT) | Planungsbüro Will GmbH & Co. KG, Hilders |
| Brandschutz | Wagner Zeitter Bauingenieure GmbH, Wiesbaden |
| Außenanlage | IHLE Landschaftsarchitekten, Weimar |
| Kosten | goedeking + schlegel baumanagement PartG mbB, Frankfurt am Main |
| Sonstiges | Küche: PROFIL Gastronomie Planung GmbH, Kriftel |
| Modell | haber turri architekten, Frankfurt am Main |
|---|---|
| Visualisierung | haber turri architekten, Frankfurt am Main |






