
Wohnhaus am Hang
Wohnhaus mit Wellnessbereich und Schwimmbad
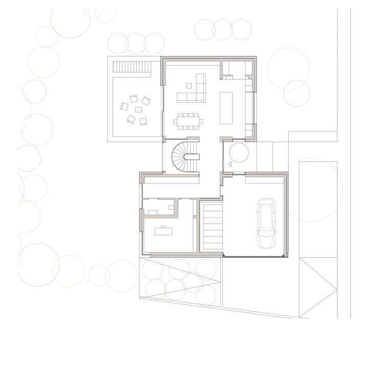
Das komplexe Raumprogramm für eine fünfköpfige Familie ist aufgrund der topographischen Situation auf drei Ebenen organisiert. Die Fassadengestaltung reflektiert die markante Gliederung des Baukörpers und ist von einer klaren Formensprache, einer einheitlichen Farbgebung sowie dem Zusammenspiel der Materialien Klinker, Putz und Holz geprägt. Mit Einsatz von Geothermie und Solarthermie werden Wärme und Strom umweltfreundlich erzeugt.
| Status | Realisiert 2024 |
|---|
| Standort | Gundernhausen |
|---|
| Leistungen | LPH 1-5 |
|---|










